QQ登录

只需一步,快速开始

登录 | 注册 | 找回密码

三维网

 找回密码
 注册

QQ登录

只需一步,快速开始

展开

通知     

查看: 2437|回复: 20
收起左侧

[求助] 请教:谁能帮我完成如图制作

[复制链接]
发表于 2013-2-4 11:22:48 | 显示全部楼层 |阅读模式 来自: 中国江苏苏州

马上注册,结识高手,享用更多资源,轻松玩转三维网社区。

您需要 登录 才可以下载或查看,没有帐号?注册

x
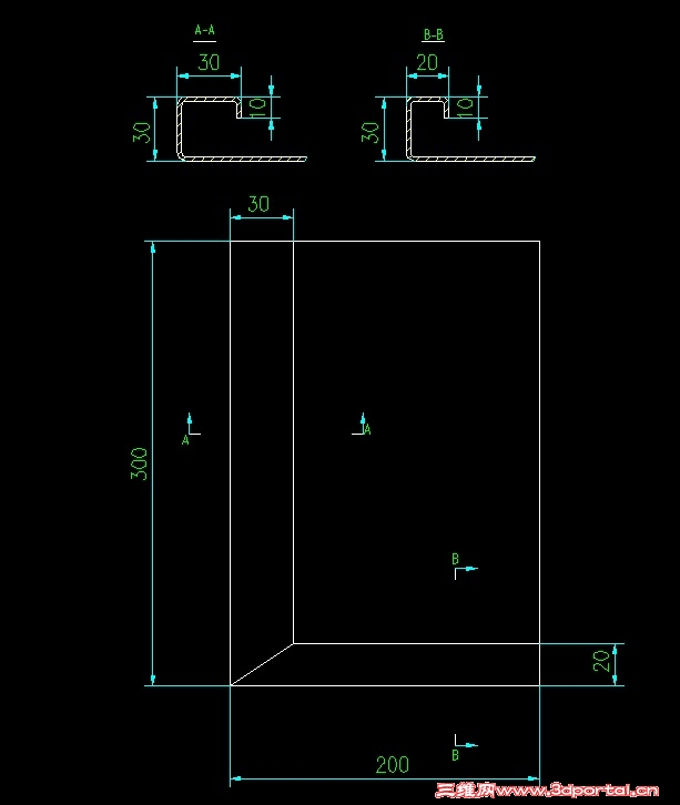
如题:见附件,请教高手帮忙按两维图做出三维图。我是做错的。谢谢!
) K, l* J4 J9 {+ A3 c在线等!!!
示意图1.jpg
示意图2.jpg
发表于 2013-2-4 13:19:04 | 显示全部楼层 来自: 中国山东青岛
寂静天花板 发表于 2013-2-4 13:10 static/image/common/back.gif
0 k* H, c3 ]& F. r用斜接法兰特征,操作看帮助文件。

* \0 s0 g. C, y5 s大侠,你用什么软件录像的? 怎么都没有失真
 楼主| 发表于 2013-2-4 14:00:19 | 显示全部楼层 来自: 中国江苏苏州
寂静天花板 发表于 2013-2-4 13:10 static/image/common/back.gif! V* y8 c( r3 {, F
用斜接法兰特征,操作看帮助文件。
4 h5 {! O9 Q& r7 Y$ ~( E& A# B
亲,你好像做的是两边相等的情况。) \( D- }6 O- p; A- n4 W
问题是我要求的如图中A-A剖与B-B剖中20和30的情况下,怎么做!
0 Z: j9 z7 K' M! }, a5 _8 {谢谢!!
发表于 2013-2-4 14:24:43 | 显示全部楼层 来自: 中国浙江杭州
楼主两边一个20,一个30,R角处能接的好吗?
! Y' _3 e* O- E. E# t/ [: U我做的这个样子很像,但不是钣金
- m( j4 S8 b: i" K 1.gif   h# j1 R* Z# C$ F
2.gif

评分

参与人数 1三维币 +3 收起 理由
阿帕奇 + 3

查看全部评分

发表于 2013-2-4 14:33:12 | 显示全部楼层 来自: 中国江苏无锡
他需要的是钣金做法,我也在帮忙做做看
发表于 2013-2-4 14:39:54 | 显示全部楼层 来自: 中国江苏无锡
或者你用画好实体转换成钣金试试看
发表于 2013-2-4 15:24:09 | 显示全部楼层 来自: 中国浙江杭州
搞了个大概- n" ~- t" N& V  ?7 W
1.gif ' h  a2 r; `# A2 x
2.gif

评分

参与人数 1三维币 +3 收起 理由
阿帕奇 + 3

查看全部评分

 楼主| 发表于 2013-2-4 15:26:10 | 显示全部楼层 来自: 中国江苏苏州
寂静天花板 发表于 2013-2-4 15:15 static/image/common/back.gif4 ?1 B; d# T7 _" i2 Q
楼主这张图必须先从工艺上可行,然后才有建模设计的必要,先问问车间师傅如何加工吧。

; \# Z% a) }5 C7 H% _+ h现在我们工件已在生产,我想做个三维图示意图模型
 楼主| 发表于 2013-2-4 15:28:21 | 显示全部楼层 来自: 中国江苏苏州
22553711 发表于 2013-2-4 14:24 static/image/common/back.gif% h. r% [7 F" i  D7 h& F
楼主两边一个20,一个30,R角处能接的好吗?
1 K2 j8 f) A" P# u, ^& H我做的这个样子很像,但不是钣金

8 K6 L/ Z$ u7 U! ~& k! B, m应该没有这方面的问题,因为板是同厚的。
- c- `2 c9 q1 a. b7 e况且我们车间已在做此工件!
 楼主| 发表于 2013-2-4 15:49:16 | 显示全部楼层 来自: 中国江苏苏州
我做了个示意,感觉很难看,先做的零件,在转成的钣金件。各位请指导!
钣金件1.jpg
钣金件展开.jpg

评分

参与人数 1三维币 +3 收起 理由
阿帕奇 + 3

查看全部评分

 楼主| 发表于 2013-2-4 15:53:16 | 显示全部楼层 来自: 中国江苏苏州
22553711 发表于 2013-2-4 15:24 static/image/common/back.gif
/ C# e% d' z* ~3 |2 I搞了个大概
% f( l0 E& I9 S! I" X' W, V
请问是用钣金件做的吗?能放上教程吗?. D2 I- ~& q3 U0 d* `
谢谢!!
 楼主| 发表于 2013-2-4 15:55:44 | 显示全部楼层 来自: 中国江苏苏州
寂静天花板 发表于 2013-2-4 15:34 static/image/common/back.gif; I' S) ]& M1 s5 ^" g$ `, ]
图纸画的和车间实际加工肯定是完全两个样子,因为车间有车间的处理办法,但SW建模是详图,所以你要用钣金 ...
$ U9 N. {# h! |8 ?
亲,辛苦了!谢谢!!/ e) {2 `; `2 a$ Q8 d, T
说实在的,这东东还是车间自己做出来的,我是想做一钣金件示意。
发表于 2013-2-4 16:11:19 | 显示全部楼层 来自: 中国浙江杭州
wbq513 发表于 2013-2-4 15:53 static/image/common/back.gif
$ Z  x: }+ b+ {9 R7 z' Z9 B4 M! c7 z请问是用钣金件做的吗?能放上教程吗?8 u6 }6 R" Y: O2 W) q
谢谢!!
. F& Z/ ]$ f; P- W% ]
我也是胡乱弄的。' A+ k' |. N6 Z' Q% L+ ]
这是我的特征树,行的话您参考
9 C- |' d( Y/ E+ F 1.gif , V& o/ C9 z9 Z: c% D4 Z
发表于 2013-2-4 20:58:17 | 显示全部楼层 来自: 中国山东青岛
这个是钣金的基本  有很多方法的
发表于 2013-2-5 08:54:53 | 显示全部楼层 来自: 中国吉林白城
本帖最后由 ywei0436 于 2013-2-5 08:56 编辑
/ V2 `/ u# v/ `% ~* {, K6 t. k  x4 R' @
这个其实很简单,一边一边的用钣金做,然后编辑钣金草图就可以了。7 s- S# v. m, c6 |
无标题.jpg

评分

参与人数 1三维币 +3 收起 理由
阿帕奇 + 3

查看全部评分

发表于 2013-2-5 09:06:58 | 显示全部楼层 来自: 中国江苏宿迁
2楼,图文并茂!
发表于 2013-2-5 14:32:42 | 显示全部楼层 来自: 中国上海
向你们学习来了!
360截图20130205142929012.jpg
360截图20130205142958949.jpg
 楼主| 发表于 2013-2-7 10:01:26 | 显示全部楼层 来自: 中国江苏苏州
xuhongren 发表于 2013-2-5 14:32 static/image/common/back.gif' P8 J6 m/ _( G0 H% t& g
向你们学习来了!
" h/ S3 P% ?% [+ s! I: W
请教你怎么可以三步“边线-法兰”就成型了,还没有明白!值得学习,请发源文件或指教。
9 ?  U* {$ `% g1 V" m5 [% \谢谢!(说说边线步骤也行)
发表于 2013-2-7 10:13:11 | 显示全部楼层 来自: 中国台湾彰化县
wbq513 发表于 2013-2-7 10:01 static/image/common/back.gif
% Z. k( {) E* e1 U3 r! }请教你怎么可以三步“边线-法兰”就成型了,还没有明白!值得学习,请发源文件或指教。4 v0 q6 a. m. D* x0 W
谢谢!(说说边线 ...
! \  W0 A9 P. Z
如果20樓的朋友做的符合要求的話,那2樓的天花版前輩做的步驟豈不更精簡?一步就完成了!! U1 r( J; e  r  N2 F6 l/ F$ I/ z  u
樓主自己在12樓做的也不錯呀!真要學習的話,是否應該16樓朋友的做法來的好一些呢?) k- I+ m& ?3 @$ X1 {# J
純屬個人觀點。" {1 ~" ]* t  O

/ W( I& c- Q; y( O: }, B$ r 2013-2-7 上午 10-08-54.png & Q8 Q; M0 n  \4 o0 O
& l$ o( H3 G2 @" Y4 a: j6 G6 ?
) O3 ?+ N) Z  k; Y( U
发表于 2013-2-7 12:40:59 | 显示全部楼层 来自: 中国辽宁
学习学习!!!!!!!!!!
发表于 2013-2-7 16:22:57 | 显示全部楼层 来自: 中国浙江嘉兴
本帖最后由 licoolicoo 于 2013-2-7 16:27 编辑 / {$ B1 c" e+ [" K7 A
2 R8 j6 S$ V* F5 K* X' @
也做了一下。感觉SW还得改进得更方法。
/ E' D5 J" U$ e  G8 ^! S 333.png 333.png
发表回复
您需要登录后才可以回帖 登录 | 注册

本版积分规则


Licensed Copyright © 2016-2020 http://www.3dportal.cn/ All Rights Reserved 京 ICP备13008828号

小黑屋|手机版|Archiver|三维网 ( 京ICP备2023026364号-1 )

快速回复 返回顶部 返回列表