QQ登录

只需一步,快速开始

登录 | 注册 | 找回密码

三维网

 找回密码
 注册

QQ登录

只需一步,快速开始

展开

通知     

查看: 6474|回复: 18
收起左侧

[求助] 我用solidworks2012做的工程图怎么变成这样

[复制链接]
发表于 2013-3-4 18:08:20 | 显示全部楼层 |阅读模式 来自: 中国广西百色

马上注册,结识高手,享用更多资源,轻松玩转三维网社区。

您需要 登录 才可以下载或查看,没有帐号?注册

x
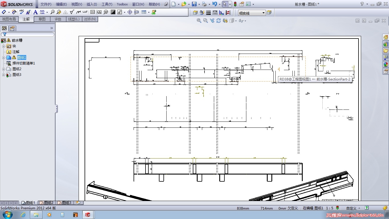
我用solidworks2012做的工程图经常会出现工程图乱作一团的情况(如图),有时通过重启或更改显示状态找回来,有时怎么也恢复不了,请求大师指点,到底是什么原因,怎么解决,用sw2011很少出现这种情况了。
无标题.jpg
 楼主| 发表于 2013-3-4 18:21:21 | 显示全部楼层 来自: 中国广西百色
现在升级到2012经常是这样,越是复杂的工程图出现的几率越高,恢复不了等于白做,用过sw2013有这样的情况吗?用过的朋友请回答一下,谢谢,要是sw2013没这问题我只有升级了
发表于 2013-3-4 18:28:55 | 显示全部楼层 来自: 中国北京
有可能是零件的特征出现了问题。吧
 楼主| 发表于 2013-3-4 18:40:04 | 显示全部楼层 来自: 中国广西百色
你们使用sw2012难道没出现这种情况吗?我们整个部门的同事用这个都有这个毛病,大部分都能弄回来,极少数怎么也弄不回来,莫非是电脑配置太低的缘故。
发表于 2013-3-4 19:13:48 | 显示全部楼层 来自: 中国江苏苏州
刚装好的2012,还没用来画个工程图,如果真这样,得考虑是否换版本了
发表于 2013-3-4 20:17:45 | 显示全部楼层 来自: 中国河南许昌
零件特征变了,之前所标的尺寸不能自动识别了,就会成这样
发表于 2013-3-4 20:36:50 | 显示全部楼层 来自: 中国北京
寂静天花板 发表于 2013-3-4 20:31 static/image/common/back.gif& F, z5 j! H$ D+ ?: i4 a) h- q
对于自己不清楚的事情别瞎扯淡

  @& U' Z/ ]( G9 t  W8 D/ [& U楼板饶命啊。。。
4 C( Q' j9 r, x3 K# J# B' h; G7 D, d7 s  r- E# {
您看到我说可能二字没物。。。
发表于 2013-3-5 07:29:25 | 显示全部楼层 来自: 日本
我也遇到这样的,2013版,不过重新打开一次工程图就好了
发表于 2013-3-5 08:48:08 | 显示全部楼层 来自: 中国广东深圳
LZ看看你是否做图时零件名称有重复的情况,SW不像PROE一样辨识ID,而是认名称,若果有同样的名称的零件,经常会报错,同时工程图也会像你上面那样,建议你在绘图时能用图号名名,在自己的图档里不要有一样的名字,如连接块,轴,等等
发表于 2013-3-5 09:55:27 | 显示全部楼层 来自: 中国河南新乡
可能是你把零件名称修改了,就会变成那样,再改过来就行了
发表于 2013-3-5 11:24:31 | 显示全部楼层 来自: 中国湖南长沙
在保存的时候尽量使文件名不重复,即便是不在一个文件夹里面。有时候会默认其他文件,我有出现过类似情况,不知道楼主遇到的问题是否和我一样。
' N' D" f; [" h0 x
 楼主| 发表于 2013-3-5 12:22:31 | 显示全部楼层 来自: 中国广西百色
我用sw十几年了,对sw有一定的了解,上面一些朋友的回答都不是我需要的答案,应该不会犯这种低级错误的,sw在做多实体钣金,好像有很多问题,展开图有一二十个,配置多,sw计算很久,出错率非常高,怎么会是链接错误呢,只要你再次打开它就好了,或者到视图的属性更改一下草稿品质到高品质的切换也会恢复的,或者编辑图纸格式再到编辑图纸有时也会显示的。
发表于 2013-3-5 16:00:48 | 显示全部楼层 来自: 中国广东深圳
我的SW2012用了好久了,没出现过这种问题!电脑的原因?破解的原因?
发表于 2013-3-5 17:09:23 | 显示全部楼层 来自: 中国上海
这个 问题 我也遇到 但我用的 不是 SW2012  是 SW 2011  
发表于 2013-3-5 17:18:25 | 显示全部楼层 来自: 中国广东茂名
是不是改了一些数据,我也经常碰到,把它保存之后,再打开就可以了
 楼主| 发表于 2013-3-5 19:19:46 | 显示全部楼层 来自: 中国广西百色
今天装了个sw2013,打开一切正常,同时sw2012打开,仍然乱七八糟,当时用sw2011做的比较复杂的图纸,很多用sw2012打开,视图经常丢失,而且报内存不足而挂掉
发表于 2013-3-6 16:06:06 | 显示全部楼层 来自: 中国江苏常州
有零件是钣金件,出了工程图后你可能改变了模型的展开状态,并不幸的保存了一下。我的经验,检查一下看看
4 h: l# q2 s  B7 w" d
发表于 2013-3-6 16:20:44 | 显示全部楼层 来自: 中国吉林白城
我出了很多图了,2012的,从无此现象。
2 W' [" y3 x, B8 T你的好像是零件出了问题,呵呵。
发表于 2013-8-27 10:45:08 | 显示全部楼层 来自: 中国广东深圳
刚刚也遇到这个问题,我就把尺寸后面的两个0变成,没有0,又好了,就是图纸不能刷新一样,找个方法刷新下就好了!
发表回复
您需要登录后才可以回帖 登录 | 注册

本版积分规则


Licensed Copyright © 2016-2020 http://www.3dportal.cn/ All Rights Reserved 京 ICP备13008828号

小黑屋|手机版|Archiver|三维网 ( 京ICP备2023026364号-1 )

快速回复 返回顶部 返回列表