QQ登录

只需一步,快速开始

登录 | 注册 | 找回密码

三维网

 找回密码
 注册

QQ登录

只需一步,快速开始

展开

通知     

查看: 13220|回复: 78
打印 上一主题 下一主题
收起左侧

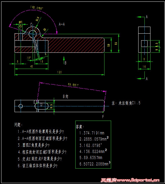
[练习题] 实体建模练习2

[复制链接]
1#
发表于 2013-3-15 16:29:41 | 显示全部楼层 来自: 中国广东广州
本帖最后由 woaishuijia 于 2013-3-22 02:12 编辑 ) n5 `$ R0 ]% `
) u* k' ?; r& ~! q; D
阳春三月:
+ P; V, n& w2 g# f7 m4 c
( C! _& W3 D* ?& O( q

评分

参与人数 2三维币 +75 收起 理由
2005llnn + 70 二等奖+三维奖
woaishuijia + 5 参与鼓励

查看全部评分

发表回复
您需要登录后才可以回帖 登录 | 注册

本版积分规则


Licensed Copyright © 2016-2020 http://www.3dportal.cn/ All Rights Reserved 京 ICP备13008828号

小黑屋|手机版|Archiver|三维网 ( 京ICP备2023026364号-1 )

快速回复 返回顶部 返回列表