QQ登录

只需一步,快速开始

登录 | 注册 | 找回密码

三维网

 找回密码
 注册

QQ登录

只需一步,快速开始

展开

通知     

查看: 2193|回复: 1
收起左侧

[求助] 房屋设计求助

[复制链接]
发表于 2013-3-25 16:28:41 | 显示全部楼层 |阅读模式 来自: 中国湖北黄石

马上注册,结识高手,享用更多资源,轻松玩转三维网社区。

您需要 登录 才可以下载或查看,没有帐号?注册

x
本帖最后由 kzh168 于 2013-3-26 09:42 编辑 5 \5 b) R6 `/ R9 N' i2 `' M
9 @+ q; {: ^8 m3 T* g2 Z" F7 Z+ s
因为咱是搞机械设计的真晕,不懂建筑设计,在这里还请教广大设计工程师好友,先谢谢你们了!
& Q! y! g( Q* L: A0 z亲戚家里房子要倒掉了,位置在省道旁边,属于省道边的街区,拆掉房子做新的
" b* C( f$ u0 `' Q) L, g& \申报的占地面积是:宽度19米,深度 13米* y' u5 `# i+ L$ z+ J0 y2 @
房屋右侧和后面是邻居家,前面是公路,左侧是后面几家的公用路9 s  |: s0 V) t' E3 B4 [" [. M' X
想房屋前后升1.8米阳台,左右升1.5米阳台7 t9 W$ |- Y* r6 x- _- I1 L
全楼总共7层
, I* n" C/ v3 z一层高度5米( b, |% R& v5 l1 N
二层高度4.2米
! @0 J1 W2 q5 P三层高度3.5米; q! P8 {* f; o
四层以上每层高度为3米) t5 o* [# ?' w" U. L! ~* {
全框架结构2 v& O; t( m, e
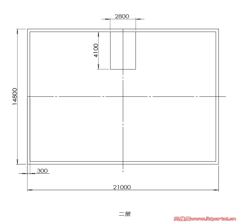
想按下面的方法来规划房屋内部,(上图)
; Y* \; `1 g' f我的问题有如下几个:(我可以上传规格的模型)7 C1 K: i( _* R% K
1、 帮忙做个重力测试,看这样的规划房屋的受力情况$ }% Z$ n1 H) r, M' K4 K; \. Z" [5 W
2、 如何架设立柱和横梁
2 t$ D6 c1 ^" |1 n# w4 C3、 使用的各类钢筋的规格
1 m9 j9 y- M0 O, w/ e% P4、 房屋的成本预算$ c/ X: v: ?% K
这里先再次谢谢了,
  S& {  d5 ~) n# F" R2 {# m
- }  W/ M* {3 d; O* U% m7 C( j" o a1.jpg 7 O  ]2 J/ k' L0 p& R  H5 A
a2.jpg 4 K, W, x8 E* `1 `0 c; G! i
a3.jpg
  `/ }9 B+ f" h0 u$ p a4.jpg 2 c6 I  R$ h/ N- W
a5.jpg
- q' V$ ~' L' y3 P' m& F+ a a6.jpg - Z' ?$ N. i2 X6 ?3 U7 Z8 `8 z
a7.jpg
! d- |# v( {6 T' B8 W

7 V' v* M% d; Y# x& h. h1 R+ V没办法,做房子借了好多债,是路边的房子只有做着做商业用途了8 z, U# @# B6 `" o& U
想着是这样的,一楼做商品出租,二楼可以做买电器或者做酒楼,或者二三层做酒楼,四层以上全部做标准间的宾馆
0 F# P8 @: L3 e' Z1 b因为我用的是SW 这里是SW的模型, 房.rar (1.19 MB, 下载次数: 1660)
发表于 2013-4-3 16:57:59 | 显示全部楼层 来自: 中国辽宁丹东
兄弟,搞建筑咱是外行啊,还是找建筑专业的来做吧。另外,建楼和盖平房不一样,图纸是需要有资质部门、人员来做的,还得勘探地质、备案、报监理………总之,事儿不少。再有,你的方案怎么看着有点头重脚轻啊。
发表回复
您需要登录后才可以回帖 登录 | 注册

本版积分规则


Licensed Copyright © 2016-2020 http://www.3dportal.cn/ All Rights Reserved 京 ICP备13008828号

小黑屋|手机版|Archiver|三维网 ( 京ICP备2023026364号-1 )

快速回复 返回顶部 返回列表