QQ登录

只需一步,快速开始

登录 | 注册 | 找回密码

三维网

 找回密码
 注册

QQ登录

只需一步,快速开始

展开

通知     

查看: 2305|回复: 10
收起左侧

[求助] 工程图中心线标注

[复制链接]
发表于 2013-9-7 17:21:02 | 显示全部楼层 |阅读模式 来自: 中国山东济南

马上注册,结识高手,享用更多资源,轻松玩转三维网社区。

您需要 登录 才可以下载或查看,没有帐号?注册

x
本帖最后由 SWJINGLING 于 2013-9-7 17:22 编辑
+ z& ]; p! I* x2 ]; M  q) a, `: H/ F/ B4 a3 F4 P9 X
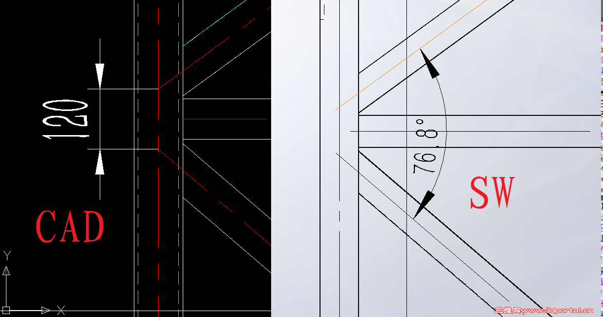
做结构件一般要标注中心线节点距离,SW中心线选择时只能标注出角度。$ d: W% b# `9 t9 y
如何才能做到下图CAD的效果。请各位老师指点. Z( S' _: o6 I0 @' ^
6.png
发表于 2013-9-7 17:55:51 | 显示全部楼层 来自: 中国广东深圳
这。。。先画两个辅助点,然后标两点之间的尺寸吧。
发表于 2013-9-7 18:01:07 | 显示全部楼层 来自: 中国山东莱芜
同意 楼上   
发表于 2013-9-7 19:16:59 | 显示全部楼层 来自: 中国上海
是的,solidworks转的图形,铺捉不到点,你自己添加点,放大后你会发现不在交点上,不准
 楼主| 发表于 2013-9-8 09:13:23 | 显示全部楼层 来自: 中国山东济南
本帖最后由 SWJINGLING 于 2013-9-8 09:23 编辑
# F; I" I% |+ l$ r  A$ k% T6 Z
0 E+ ~7 m4 w; ^草图的点无法捕捉生成中心线,只能形似不准,一旦尺寸改变。点的尺寸不能更新。
+ i" M: P+ _8 {/ a. d7 }/ ]  V 9.png
发表于 2013-9-8 10:00:15 | 显示全部楼层 来自: 中国广东揭阳
SWJINGLING 发表于 2013-9-8 09:13 static/image/common/back.gif
' p/ u* K  a- F  L# O  V2 p草图的点无法捕捉生成中心线,只能形似不准,一旦尺寸改变。点的尺寸不能更新。
! d% n# E( ~/ Z- D* z. d
添加点的时候可以先按着ctrl选择两条相交的中心线,然后再点草图工具栏的点,那么这个点就会在交点上。1 M2 }5 Q7 ], x+ N/ s) ^
也可以随便画个点,然后约束这个点分别和两个线重合,那么这个点也是交点了。
发表于 2013-9-8 11:14:30 | 显示全部楼层 来自: 中国上海
画条线不就搞定了,再测线的距离
发表于 2013-9-8 12:32:42 | 显示全部楼层 来自: 中国广东东莞
SW应该可以中心线修剪就好了,算是一个小BUG吧
 楼主| 发表于 2013-9-8 16:35:11 | 显示全部楼层 来自: 中国山东济南
我的水平有限,草图的点怎么也捕捉不到工程图生成的中心线。。。。
发表于 2013-9-9 09:22:53 | 显示全部楼层 来自: 中国天津
asencwx 发表于 2013-9-8 10:00 http://www.3dportal.cn/discuz/static/image/common/back.gif/ w6 I, S7 h# v8 L
添加点的时候可以先按着ctrl选择两条相交的中心线,然后再点草图工具栏的点,那么这个点就会在交点上。& Y# R0 |% x, d1 m6 a: f8 W# f
...

* _; ~. t8 o( Y( d8 f4 t6 L8 h# l
楼主的中心线 应该是 用注解里的中心线 产生的,使用此法不通,   除非自己划线
发表于 2013-9-9 13:20:33 | 显示全部楼层 来自: 中国江苏无锡
建议你直接用草图把你需要的线或点画出来然后再标注.
发表回复
您需要登录后才可以回帖 登录 | 注册

本版积分规则


Licensed Copyright © 2016-2020 http://www.3dportal.cn/ All Rights Reserved 京 ICP备13008828号

小黑屋|手机版|Archiver|三维网 ( 京ICP备2023026364号-1 )

快速回复 返回顶部 返回列表