QQ登录

只需一步,快速开始

登录 | 注册 | 找回密码

三维网

 找回密码
 注册

QQ登录

只需一步,快速开始

展开

通知     

查看: 3591|回复: 24
收起左侧

[已解决] 又一道auto cad职称试题……求助

[复制链接]
发表于 2013-9-23 10:31:50 | 显示全部楼层 |阅读模式 来自: 中国江苏苏州

马上注册,结识高手,享用更多资源,轻松玩转三维网社区。

您需要 登录 才可以下载或查看,没有帐号?注册

x
本帖最后由 super353 于 2013-9-23 13:33 编辑 - r+ W, ^" v, i: X8 x5 q9 ~

* `) ^# g$ s; n' P. M* w! ]4 i 搜狗截图_2013-09-23_10-32-48.png
- f' \5 r8 m5 Q' ~9 n! V4 a) ^9 ^* ]+ W. }2 |: ?, |8 {; w3 g
考试使用的cad版本:2006
发表于 2013-9-23 11:31:06 | 显示全部楼层 来自: 中国湖北咸宁
360软件小助手截图20130923113045.jpg
+ y7 X, K( ], P2 p, _# g; z6 O) M" w( K) F3 T$ ]
凑个热闹。
 楼主| 发表于 2013-9-23 11:38:39 | 显示全部楼层 来自: 中国江苏苏州
cloudpeng 发表于 2013-9-23 11:31 static/image/common/back.gif
2 _0 D# H4 N! u% u" H- A凑个热闹。

: h% I) `* v4 }6 d答案正确,cad可以吗?
发表于 2013-9-23 13:09:28 | 显示全部楼层 来自: 中国浙江衢州
利用版本高的CAD、有参数化功能的可以画出来。
 楼主| 发表于 2013-9-23 13:32:44 | 显示全部楼层 来自: 中国江苏苏州
fansigen 发表于 2013-9-23 13:09 static/image/common/back.gif
/ z. B2 t9 j+ H3 S. S0 o利用版本高的CAD、有参数化功能的可以画出来。

( f) k, a3 z  B  x& j2 Z2 k2 n5 |考试要求的版本为2006
发表于 2013-9-23 18:42:54 | 显示全部楼层 来自: 中国广东东莞
天花板没看题目就做题!~
发表于 2013-9-23 21:02:09 | 显示全部楼层 来自: 中国山东威海
本帖最后由 xuezhongfei2002 于 2013-9-23 21:20 编辑 % u8 n' ], C' }8 k9 R' h2 p2 f

- S2 U5 `( Y; [0 Q( P$ d3 r* P, q. @试了试,还是做出来了,考的是基础知识呀,关键在第一步,第一行的两个圆的圆心在角平分线上,做两个直角的平分线,再用切\切\切画圆好就完了,第一行画完,复制就可以了如图:
010.jpg

Drawing1.zip

53.96 KB, 下载次数: 1

发表于 2013-9-23 21:43:16 | 显示全部楼层 来自: 中国山东青岛
xuezhongfei2002 发表于 2013-9-23 21:02 static/image/common/back.gif) ^& _' I# I1 x& ~( x1 k, N
试了试,还是做出来了,考的是基础知识呀,关键在第一步,第一行的两个圆的圆心在角平分线上,做两个直角的平分线 ...

1 s5 ~* o1 S6 c1 n楼主好像理解错了吧,你那最后一个圆是与底边相切吗
发表于 2013-9-24 06:53:24 | 显示全部楼层 来自: 中国吉林长春
本帖最后由 woaishuijia 于 2013-9-25 02:54 编辑 5 T" L  B7 C) Q& ^) q! `, }( ], `
  w! }. S% `4 w+ W
首先,根据题意设未知数并列出方程组如下图
" d  ~7 [6 W2 K& [# J. V* _; e Untitled-1.gif Untitled-2.gif
9 b  b: E- e% U2 P2 [7 m, f假设r=1,方程可简化如下$ g; x$ d6 w$ I; `; T  d) ^
Untitled-3.gif
3 g; V% @. s2 Y# s# U8 V9 I进一步整理为
9 g* q3 o# ~& Q, v Untitled-4.gif
) Y$ m) ]6 y: r) O. l, Y: {上式分别为一个圆心在坐标原点,半径为2的圆,和一条通过点(0,3/4)和点(-3/2,0)的直线
" X6 u5 H  w7 ]; `& r+ h在CAD上分别画出这个圆和直线,如下图. X& C. f# x5 E3 b( ]" t
Untitled-5.gif : d, Y7 w; i4 E9 O9 D8 n' q: i% l5 g
延伸直线与圆相交,得到点(X,Y),如下图
# H- c' }) _  b4 v+ c- F1 l Untitled-6.gif
+ J& U! l* g  g0 _) i/ C画出从坐标原点到点(X,Y)的直线段(这才是我们所要的东东),如下图
1 l+ v$ u- C+ Z7 h/ N Untitled-7.gif
4 I1 O7 d2 X. ~7 @. e删除用过的辅助线,并在该直线的两端分别画出R1圆,如下图
) u  g  I% L8 L/ O Untitled-8.gif
+ t/ d* a" b4 `6 C  _镜像之,并画出其矩形外框,如下图
$ O& L- s1 F4 A0 K( e% R) X# g7 @9 c Untitled-9.gif - \8 Z' y6 ^0 A" y
最后一步,参照缩放.
- h$ ?$ c; L9 _" X% p0 y无图,自行脑补
; N) J# ^6 s( I2 N7 x7 b; ?

评分

参与人数 1三维币 +20 收起 理由
2005llnn + 20 技术讨论

查看全部评分

发表于 2013-9-24 08:27:20 | 显示全部楼层 来自: 中国湖北咸宁
woaishuijia 发表于 2013-9-24 06:53 static/image/common/back.gif) S( Y% S' T1 Y; v8 V: p
首先,根据题意设未知数并列出方程组如下图/ f+ A/ R2 }4 A: H) O
  U0 _% p9 ?( Q- o" v+ n
假设r=1,方程可简化如下
* }; U- b% }0 w  ~1 M& u' M
好,思路新颖,方法准确,值得一学。
发表于 2013-9-24 09:16:32 | 显示全部楼层 来自: 中国江苏常州
woaishuijia 发表于 2013-9-24 06:53 static/image/common/back.gif
6 o+ r& s- B4 K* ?首先,根据题意设未知数并列出方程组如下图
9 X( f3 ^5 {7 W8 o
5 h+ N8 g6 u, R, I/ W假设r=1,方程可简化如下
* ^& C: R6 X% v3 w* f) F7 U
学习了    谢谢  
5 w% \) }8 Y* x* I3 C
发表于 2013-9-24 09:21:07 | 显示全部楼层 来自: 中国江苏南通
本帖最后由 sh_mrhg 于 2013-9-24 09:44 编辑
. @5 Z4 i$ [, {
5 X$ G9 \4 C7 {: d/ ]10#正解
aa.JPG
发表于 2013-9-24 09:35:13 | 显示全部楼层 来自: 中国江苏苏州
厉害厉害,我也想直接画了,但不接边
 楼主| 发表于 2013-9-24 10:42:13 | 显示全部楼层 来自: 中国江苏苏州
woaishuijia 发表于 2013-9-24 06:53 static/image/common/back.gif. I+ q( S6 ?& Q4 s0 d+ F" J7 f* I
首先,根据题意设未知数并列出方程组如下图
9 X, x7 q# ?' A  z! j
8 a1 g' p5 V1 c5 \) N- x假设r=1,方程可简化如下

6 m& D" _( }! k% h- l十分感谢,骨灰级的cad高手啊
发表于 2013-9-24 11:02:01 | 显示全部楼层 来自: 中国浙江衢州
真厉害,学习了。
发表于 2013-9-24 15:11:31 | 显示全部楼层 来自: 中国重庆
类似的考试题重来没有在工作中用到过。如此考试有意思吗》?、
 楼主| 发表于 2013-9-24 18:40:56 | 显示全部楼层 来自: 中国江苏苏州
欠你一夜情 发表于 2013-9-24 15:11 static/image/common/back.gif
* P2 l- O& y8 ]' X/ N类似的考试题重来没有在工作中用到过。如此考试有意思吗》?、
8 H1 O0 Q) C2 t4 b
现在的考试都是出其不意,专考你不会的
发表于 2013-9-24 19:07:09 | 显示全部楼层 来自: 中国广西南宁
类似的试题可以参考:CA D几何作图竞赛题(20094月) ,竞赛结果已公布 0 ?9 z% x0 x+ J0 R# e) D* ^7 M
/ T" H8 Q1 n6 y+ Y. s/ v

# e3 a- w! Z& L1 ^! {7 i CA D几何作图竞赛题(2009年4月).jpg
* h" [& H, [0 |; Y1 W7 Y4 M
, k, _7 a, J) s1 W5 ^4 a+ H- B
发表于 2013-9-28 15:40:50 | 显示全部楼层 来自: 中国青海海西蒙古族藏族自治州
本帖最后由 gongwen0519 于 2013-9-28 16:42 编辑 ) n0 v- v% N% |  `) G
: q. d& \6 M3 L: E
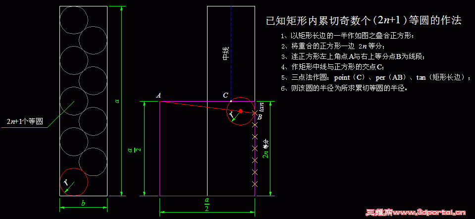
10楼woaishuijia斑竹的计算法不错(黑马斑竹豪爽的给了20块大洋,呵呵),但在具体的作法上不具备通用性(换个尺寸的话得另行计算),下面这个作法可是用尺规作图就可以解决的,且具有100%的通用性。# f/ C" J( u9 K( S& r

( R8 Y4 W- @7 \一、已知矩形内累切奇数个等圆的作法:
' h2 {/ [  n; {: P' ^; o
6 P+ y8 H* r" n( K' B9 {! i jg001.gif
9 H9 B, B' `+ P1 {' s! B. x8 }) ?. Z- U- |" l: d4 ?9 M

4 Z  P8 x0 f2 Z: I二、已知矩形内累切偶数个等圆的作法:
2 j  |  C& C& g& @  U( u% ]. l
/ a3 K$ d0 n% O: W4 c& v) p4 ]6 U1 O) t  W9 J3 s/ c0 Q
j002.gif

评分

参与人数 1三维币 +20 收起 理由
2005llnn + 20 技术讨论

查看全部评分

发表于 2013-9-28 16:22:46 | 显示全部楼层 来自: 中国青海海西蒙古族藏族自治州
按照上楼方法数量向下递减状况:
* z8 t6 L+ F6 K/ z( c4 |& g( D- ]0 l4 B
bian.gif
0 c8 }: Z' P  w; \
发表于 2013-9-28 16:24:22 | 显示全部楼层 来自: 中国江苏苏州
学习几何画法。对不对?
% ]* u/ G7 L3 \" o 捕获.PNG

评分

参与人数 1三维币 +10 收起 理由
2005llnn + 10 技术讨论

查看全部评分

发表于 2013-9-28 16:47:28 | 显示全部楼层 来自: 中国青海海西蒙古族藏族自治州
本帖最后由 gongwen0519 于 2013-9-28 16:53 编辑 ) H: q' f" o4 c# [+ P8 O0 v9 c7 e, Z
wupeiqi 发表于 2013-9-28 16:24 http://www.3dportal.cn/discuz/static/image/common/back.gif
2 k! W& e, e; U" \4 H( M1 I学习几何画法。对不对?

. u. n& q, }( C4 q& S
& M- N/ d. c' Z& w不错,你这个偶数本位圆作法亦可。。。。,20楼的帖子就不修改了,呵呵。
发表于 2013-9-29 09:08:07 | 显示全部楼层 来自: 中国重庆
学习了,感谢gongwen0519
 楼主| 发表于 2013-9-29 10:52:12 | 显示全部楼层 来自: 中国江苏苏州
gongwen0519 发表于 2013-9-28 15:40 static/image/common/back.gif
: a; n! W, i4 @, |" i( P9 k! u' F$ @$ f10楼woaishuijia斑竹的计算法不错(黑马斑竹豪爽的给了20块大洋,呵呵),但在具体的作法上不具备通用性(换 ...
) B  H1 [0 v* a( i( Z; V  ~/ F
好厉害  佩服
发表于 2013-10-6 17:15:31 | 显示全部楼层 来自: 中国台湾
大家都太厲害了,不過還是以幾何做圖繪圖較準確,因為有小數點以下幾位數的問題
发表回复
您需要登录后才可以回帖 登录 | 注册

本版积分规则


Licensed Copyright © 2016-2020 http://www.3dportal.cn/ All Rights Reserved 京 ICP备13008828号

小黑屋|手机版|Archiver|三维网 ( 京ICP备2023026364号-1 )

快速回复 返回顶部 返回列表