QQ登录

只需一步,快速开始

登录 | 注册 | 找回密码

三维网

 找回密码
 注册

QQ登录

只需一步,快速开始

展开

通知     

查看: 7771|回复: 6
收起左侧

[已解决] 工程图中的A-A剖面该怎么画

[复制链接]
发表于 2014-7-30 17:10:01 | 显示全部楼层 |阅读模式 来自: 中国河南郑州

马上注册,结识高手,享用更多资源,轻松玩转三维网社区。

您需要 登录 才可以下载或查看,没有帐号?注册

x
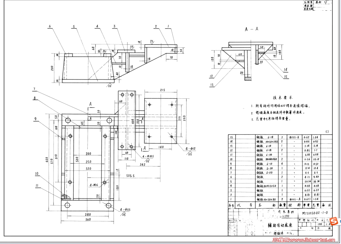
工程图中的A-A剖面图,不知道怎么画好,请教高手,难道是旋转剖再加断裂剖?有好的方法没?附件中有模型,图纸和工程图
! x' j- e/ O! m5 f" z4 v  A* l# c0 S; p# b, b/ ^! g0 S

4 ^4 U2 N3 e9 B. q/ x http://www.3dportal.cn/discuz/source/plugin/sina_xweibo_x3/xwb/images/bgimg/icon_logo.png 该贴已经同步到 topsjsn_2008的微博

图纸

图纸

附件中有模型,工程图和图纸.rar

644.61 KB, 下载次数: 53

发表于 2014-7-30 18:48:39 | 显示全部楼层 来自: 中国上海
2014版本 局部剖两次
1 B' B2 N# J  u, D

gct.rar

156.21 KB, 阅读权限: 5, 下载次数: 28

工程图 2014版

 楼主| 发表于 2014-7-30 21:45:15 | 显示全部楼层 来自: 中国河南郑州
谢谢,又学习到了新知识
发表于 2014-7-31 19:46:55 | 显示全部楼层 来自: 中国湖南长沙
这是手工画的图吗,感觉比三维画的好看多了。
发表于 2014-8-1 15:52:28 | 显示全部楼层 来自: 中国四川泸州
很多老工程师画出来的手工图,无论是从审美还是尺寸标注,都是很有客观性的,现在有电脑做出来的,严谨的比较。。。反正客观性不强
发表于 2014-8-1 15:53:50 | 显示全部楼层 来自: 中国四川泸州
是可观性不强,打错字了
发表于 2014-8-25 11:06:49 | 显示全部楼层 来自: 中国天津
谢谢楼主的分享
发表回复
您需要登录后才可以回帖 登录 | 注册

本版积分规则


Licensed Copyright © 2016-2020 http://www.3dportal.cn/ All Rights Reserved 京 ICP备13008828号

小黑屋|手机版|Archiver|三维网 ( 京ICP备2023026364号-1 )

快速回复 返回顶部 返回列表