QQ登录

只需一步,快速开始

登录 | 注册 | 找回密码

三维网

 找回密码
 注册

QQ登录

只需一步,快速开始

展开

通知     

查看: 1441|回复: 5
收起左侧

[求助] 关于随形阵列……求解

[复制链接]
发表于 2015-4-2 14:18:21 | 显示全部楼层 |阅读模式 来自: 中国江苏苏州

马上注册,结识高手,享用更多资源,轻松玩转三维网社区。

您需要 登录 才可以下载或查看,没有帐号?注册

x
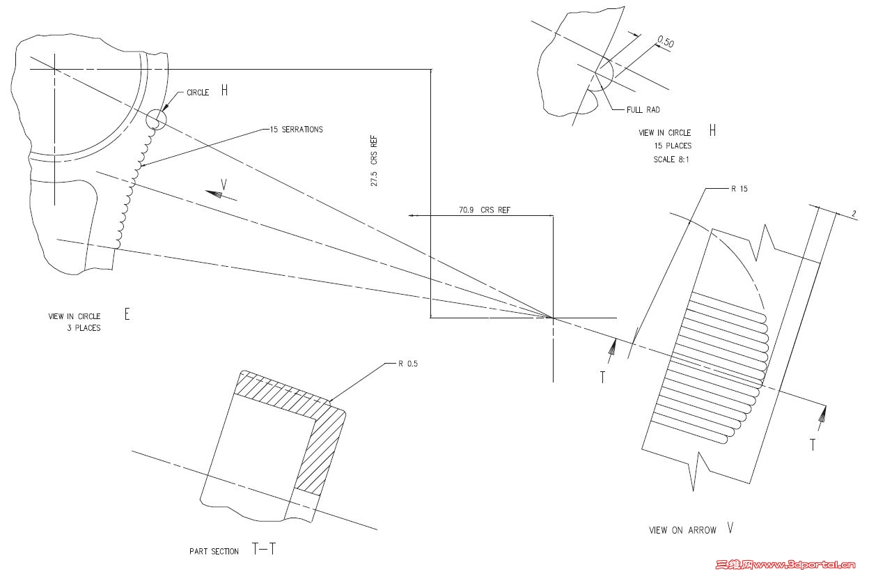
Capture.JPG
: b9 T% `2 l! \* w. X
2 g& G# m. a+ o: ^2 n图中有尺寸的,按尺寸,无尺寸的,大致差不多即可。画出那个齿状的东西即可
2 k6 n, S. ?) z; O/ ^
; P6 {+ k$ V: Q) F希望给出模型,谢谢啦~~~

; T4 O+ H+ t# f! k6 l  @0 M2 n
 楼主| 发表于 2015-4-2 15:22:38 | 显示全部楼层 来自: 中国江苏苏州
寂静天花板 发表于 2015-4-2 15:14 static/image/common/back.gif3 @+ I5 b) A( U' U# b  U' h
齿状的突出才0.5高,0.5是什么单位,如果是mm,那太吓人了

: `/ q4 S9 }7 P- W1 {, A就按mm,能画出来吗?主要是个思路。。百思不得其解,苦恼中~~~~~
 楼主| 发表于 2015-4-2 16:40:53 | 显示全部楼层 来自: 中国江苏苏州
寂静天花板 发表于 2015-4-2 15:58 static/image/common/back.gif# `) r) g/ A1 r/ u( H8 n: i7 y
V向视图的圆角做不了,因为有个疑问,那是个弧面的投影,所以不应该是圆角,或者说那个圆角是投影后的结果 ...
0 ^: |  U, J1 I6 `6 j6 @) v, x+ l
应该原来就是个圆角。。这样的话,能弄出来吗?
发表于 2015-4-2 22:30:06 | 显示全部楼层 来自: 中国北京
随形阵列有这个功能吗,一般好像都是X和Y轴的整列吧,我没发现随形整列啊
发表于 2015-4-29 16:12:59 | 显示全部楼层 来自: 中国贵州贵阳
本帖最后由 sw2003x 于 2015-4-29 16:18 编辑 3 c& w) Z' D  E: [
super353 发表于 2015-4-2 16:40 static/image/common/back.gif  H% t9 N8 J0 J0 ^
应该原来就是个圆角。。这样的话,能弄出来吗?

+ G) T1 k+ S. z: \( d按楼主提供的图纸严格来描述应该是每个小圆柱下端面是球面。笨办法做的,不会随行阵列,但是可以参数控制更改。
* @9 n3 o3 p7 e' p( K: q% X 装饰花纹-01.png ! q1 a# L/ Q/ j- J
装饰花纹-02.png
 楼主| 发表于 2015-5-4 10:04:52 | 显示全部楼层 来自: 中国江苏苏州
sw2003x 发表于 2015-4-29 16:12 static/image/common/back.gif
$ ^& m2 ]6 v5 j按楼主提供的图纸严格来描述应该是每个小圆柱下端面是球面。笨办法做的,不会随行阵列,但是可以参数 ...
8 L/ X6 _+ x& x4 h
谢谢了,能否提供下你的模型呢
发表回复
您需要登录后才可以回帖 登录 | 注册

本版积分规则


Licensed Copyright © 2016-2020 http://www.3dportal.cn/ All Rights Reserved 京 ICP备13008828号

小黑屋|手机版|Archiver|三维网 ( 京ICP备2023026364号-1 )

快速回复 返回顶部 返回列表