QQ登录

只需一步,快速开始

登录 | 注册 | 找回密码

三维网

 找回密码
 注册

QQ登录

只需一步,快速开始

展开

通知     

查看: 3571|回复: 26
收起左侧

[求助] 这样的阀门特征建模思路是什么?

[复制链接]
发表于 2015-6-14 22:54:08 | 显示全部楼层 |阅读模式 来自: 中国北京

马上注册,结识高手,享用更多资源,轻松玩转三维网社区。

您需要 登录 才可以下载或查看,没有帐号?注册

x
本帖最后由 coleman_lee 于 2015-6-15 19:46 编辑 % y+ p. M7 e  E5 s$ q; E3 O
1 @( ^( y3 n0 Q2 w& @
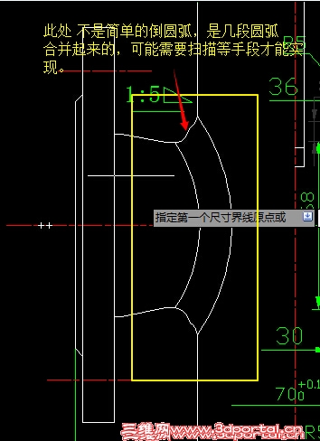
想按照CAD图的方式进行建模,但是旋转出来并不能达到要求,扫描也进行了尝试,也没有办法,有什么思路?7 t( \- M; d5 X. ^) C( A
QQ截图20150615194150.jpg
' R4 V% r4 r) @% }: B0 J) V
2 U8 h, r5 I7 v9 x: [" |三维模型隐藏了法兰,只是想重点显示出相贯线处的形状。
1 f2 i5 h' }* U% {# l) v" y' M QQ截图20150615194629.jpg
& y) {2 H, f: _9 w3 q( C7 A) x" [" v
$ A0 ]7 I5 S$ s" _$ n QQ截图20150615193929.jpg
5 C& k( g- U0 u  y
2 [5 E( q0 J- v  V0 e5 _0 l( K2 u  B6 _5 I1 i: F5 T! I
( ^; ?: w5 g# z+ E3 H) e, Z

' H. R3 n/ P+ }+ {
/ [# _8 o# n& n) ]0 T补充内容 (2015-6-20 12:31):
2 M% N$ S' }! I3 n/ V问题在各位热心网友的帮助下已解决,我的结果见25楼。
发表于 2015-6-16 14:03:17 | 显示全部楼层 来自: 中国浙江嘉兴
本帖最后由 ryouss 于 2015-6-16 14:09 编辑 4 g. v- J: B( d0 S, w
- [. R# x3 R! B5 T
附檔參考, {) c! o; W& k" r
# N4 \3 c2 a0 z" i# k
3 K; _6 y/ c6 y+ z: t
焊接管放樣.rar (121.9 KB, 下载次数: 10)
发表于 2015-6-14 23:49:36 | 显示全部楼层 来自: 中国浙江嘉兴
焊接效果嗎?
: z% B" i7 q* G1 l
. ^3 O2 k  d+ }9 H" Z yy.png
发表于 2015-6-15 06:33:38 | 显示全部楼层 来自: 中国山东
1,*你想要什么效果:2,最好把你的扫描图贴上看看. k( P( ~3 O$ y. i* h0 C0 e
发表于 2015-6-15 08:05:04 | 显示全部楼层 来自: 中国山东烟台
倒个圆角吧
发表于 2015-6-15 08:19:54 | 显示全部楼层 来自: 中国辽宁盘锦
ryouss 发表于 2015-6-14 23:49 static/image/common/back.gif
9 P, @1 T' J, W0 J! q. B焊接效果嗎?
3 j8 M0 w+ z) ~
最好把整张图上传,好让大家知道是不是倒圆角的际线都保留,这样云里雾里多费解
发表于 2015-6-15 08:36:25 | 显示全部楼层 来自: 中国安徽芜湖
图样的设计思路和制造工艺决定了建模方法。
发表于 2015-6-15 16:20:13 | 显示全部楼层 来自: 中国湖北黄冈
1. 先拉伸长圆柱体,
" E0 s, B) ^+ F2. 横向旋转法兰和斜锥1:5体部分,# q7 o* ]/ m3 x2 D4 s4 }! @% C: w1 X
3. 抽壳、倒圆弧即可。
 楼主| 发表于 2015-6-15 19:43:09 | 显示全部楼层 来自: 中国广东中山
ryouss 发表于 2015-6-14 23:49 static/image/common/back.gif0 U' ?) D+ `# h# q) R: B
焊接效果嗎?
' c, D" g  o3 X% _$ {
相贯线处不是简单的圆弧或焊缝,是由几段圆弧组成的,简单的倒圆弧无法做出来。
 楼主| 发表于 2015-6-15 19:43:55 | 显示全部楼层 来自: 中国广东中山
2374 发表于 2015-6-15 06:33 static/image/common/back.gif
& G3 I) A  R% f1,*你想要什么效果:2,最好把你的扫描图贴上看看
) Y  W: P9 B5 b. k+ i, C8 o
相贯线处不是简单的圆弧或焊缝,是由几段圆弧组成的,简单的倒圆弧无法做出来。: f" N! U( E  n
我想在相贯线出画出原CAD图中的那种几段圆弧组成的形状。
 楼主| 发表于 2015-6-15 19:44:25 | 显示全部楼层 来自: 中国广东中山
sxl_sxl 发表于 2015-6-15 08:05 static/image/common/back.gif4 A: u4 ]. h2 ]0 W
倒个圆角吧

8 h+ I9 }6 y: ?  E2 p) d相贯线处不是简单的圆弧或焊缝,是由几段圆弧组成的,简单的倒圆弧无法做出来。
2 O+ A4 a3 A4 K, o1 w% C我想在相贯线出画出原CAD图中的那种几段圆弧组成的形状。
 楼主| 发表于 2015-6-15 19:47:10 | 显示全部楼层 来自: 中国广东中山
tangcarlos3d 发表于 2015-6-15 16:20 static/image/common/back.gif
0 ?8 p, X9 N, t& ?" W2 R1. 先拉伸长圆柱体,
$ q' ?9 d+ M% j: l2. 横向旋转法兰和斜锥1:5体部分,0 v' f; x. G3 m! V' M- r: q1 a
3. 抽壳、倒圆弧即可。
9 _) B# z; u4 q7 Y2 g6 E
相贯线处不是简单的圆弧或焊缝,是由几段圆弧组成的,简单的倒圆弧无法做出来。1 j3 B3 C1 M: K+ j0 [2 x- W5 t! o
我想在相贯线出画出原CAD图中的那种几段圆弧组成的形状。
 楼主| 发表于 2015-6-15 19:49:40 | 显示全部楼层 来自: 中国广东中山
寂静天花板 发表于 2015-6-15 09:24 static/image/common/back.gif' X  t+ [- O7 h
图画错了,说明没读懂图,楼主识图堪忧,还研究什么三维呢。

" p/ E7 y1 y' I" k5 G不敢跟大侠辩论识图,我只求虚心求教,各位能不吝指点已很感谢。3 P2 Q$ L3 m* o0 l/ f
$ y* e! X: z7 h1 ?- Q
按我原图的要求,相贯线处做出合适的圆弧形状毫无思路。
发表于 2015-6-15 20:01:00 | 显示全部楼层 来自: 中国湖北黄冈
本帖最后由 tangcarlos3d 于 2015-6-15 20:02 编辑
7 s0 V$ T' ~6 x- E) E: k. S% e2 u
coleman_lee 发表于 2015-6-15 19:47 static/image/common/back.gif
' P0 n0 \( l! s- [) Z+ x1 q相贯线处不是简单的圆弧或焊缝,是由几段圆弧组成的,简单的倒圆弧无法做出来。# i4 H! J0 _+ _
我想在相贯线出画出原CA ...

! z- T2 l/ z. X+ q7 Z! h! ~
8 @2 c7 L& H6 [不倒圆弧也可以。用你要求的截面沿相惯线扫描也可以得到所要的样子。
& z/ x1 o, i6 ^, k不明白的是为什么不做成简单的倒圆弧,而要用多段圆弧?
发表于 2015-6-15 20:02:42 | 显示全部楼层 来自: 中国陕西西安
左边采用相贯可以,右边必须有圆柱相交,要不然68的台阶圆会穿漏。
1 |' O0 Q' \; d4 ]; p0 ^  t$ ?只能象楼主第二个图片一样做才行。
 楼主| 发表于 2015-6-15 22:09:17 | 显示全部楼层 来自: 中国浙江温州
tangcarlos3d 发表于 2015-6-15 20:01 static/image/common/back.gif
& G2 U- Z# [( I8 T( \不倒圆弧也可以。用你要求的截面沿相惯线扫描也可以得到所要的样子。
4 v7 z7 d* Q' j9 ?5 S不明白的是为什么不做成简单的倒 ...
! h! J3 ]8 I7 k4 f
你好,感谢你的帮助:4 _# w; u: B- ?# [+ M4 o
1.这个图纸是我用来做2D转3D联系用,原图做成几段圆弧可能是出于加强原因,或者很可能就是一个焊缝的形状,我不得而知。
$ \  R9 Y$ ~3 @; n9 Q2.我是相贯线扫描出错:- x  }9 X" H/ `* K
QQ截图20150615202237.jpg
  a  s3 y7 m8 `$ F% F8 J7 o) ?
+ u2 \5 V- ?2 o0 T2 _3.我用圆形草图投影到圆柱上形成一个“临时测试曲线”,扫描形状与要求不符(不同参数的图片):1 T, I& x( [* w, j5 [
QQ截图20150615200759.jpg QQ截图20150615200740.jpg
" ?4 k& e/ C( ]# Z/ ]
) A0 L& C# J3 k. B' H) ]0 P
- F2 [- y3 V1 v2 S/ V% o7 r( G4 ?# X: \- B7 _) ^* M
发表于 2015-6-16 09:10:40 | 显示全部楼层 来自: 中国陕西西安
coleman_lee 发表于 2015-6-15 22:09 static/image/common/back.gif
& I. ~6 M" T/ M1 [* M2 ?你好,感谢你的帮助:# @6 e% m8 B4 C: ~+ z% I
1.这个图纸是我用来做2D转3D联系用,原图做成几段圆弧可能是出于加强原因,或者很 ...
" ]& f6 t6 v) ~8 N1 ^+ f6 _1 u/ D! @% k
按这个方法做出来的话,68的台阶圆必然会穿漏的。
发表于 2015-6-16 10:44:25 | 显示全部楼层 来自: 中国浙江嘉兴
本帖最后由 ryouss 于 2015-6-16 11:54 编辑
7 n% S1 L7 m0 I' N: {
2 Q8 ^8 a! T+ n1 n, E$ A放樣可達要求嗎
2 S7 u: u3 O+ `3 E9 W2 q5 T  N
* M& @6 T% @( O) J capture_06162015_111608.png
* [% I+ u+ \" c& W( f4 P8 o/ U5 |4 z  D, @& U  M
capture_06162015_112618.png
# v) m1 B1 b6 y$ o% d/ L4 E) n: X0 v9 D3 |9 G7 Q* q
capture_06162015_115306.png
9 S8 q7 w& W9 `; m4 q
0 T$ r& n3 [9 e7 f3 h; |
" Z( W/ |0 H* h5 x6 \& X* j2 B$ T/ q( D5 Z! L
发表于 2015-6-16 11:00:55 | 显示全部楼层 来自: 中国陕西西安
这样估计不行,如图示,68的台阶圆两处会穿漏的
) \3 j+ f# {9 y$ {3 F* @- N2 [$ ^
1.PNG
发表于 2015-6-16 12:25:55 | 显示全部楼层 来自: 中国湖北黄冈
楼主第3图怎么右视图是直径106,而左视图是宽度79?
 楼主| 发表于 2015-6-16 13:27:57 | 显示全部楼层 来自: 中国北京
ryouss 发表于 2015-6-16 10:44 static/image/common/back.gif
+ t9 O% o7 Q$ \" {, b* H0 z% j放樣可達要求嗎
9 G* T( _# }: r  _- H7 h" L
我尝试了,我水平一般,没实现您的效果。能否传一个源文件,我学习一下。
 楼主| 发表于 2015-6-20 12:27:47 | 显示全部楼层 来自: 中国广东中山
寂静天花板 发表于 2015-6-16 14:20 static/image/common/back.gif
5 p8 t7 o5 m5 ^" W4 e看形状如果是铸管,哪个白痴设计成这样的相贯线;如果是焊管,更是吃饱了撑的,为什么不做成两个实体,为什 ...

' u3 R, Q0 g$ ?& I. ^! j感谢帮助,问题已解决。
 楼主| 发表于 2015-6-20 12:31:18 | 显示全部楼层 来自: 中国广东中山
问题已解决 !!!(感谢网友的热心帮助)
6 C# o( N7 g* l$ `1 W4 o解决办法:' l8 ?; O* ]- D% y  }& u' q$ P3 a
1.在相贯线名义上的“四个象限点”处做出符合CAD要求的草图;
. u+ X3 Y& V9 H5 u9 Y" x4 w2.放样草图依次选择四个草图作为闭环;
4 a+ m2 f$ i* r6 S9 D5 a" X- D3.路径选择相贯线;
# |- J" Z' D: [4.完成放样,得到形状,如下图所示:
# ^. Q. A6 V3 v7 |2 @; w) R) Z3 l
0 k9 ?' U- A9 I/ X QQ截图20150620122137.jpg PIC-121640.png 1 ^1 V/ E* C9 O# B, j
发表于 2015-6-20 13:05:43 | 显示全部楼层 来自: 中国陕西西安
coleman_lee 发表于 2015-6-20 12:31 static/image/common/back.gif
( @. h5 v# J  f) K0 H问题已解决 !!!(感谢网友的热心帮助)
+ L  {! o' ?& ~* i解决办法:* ?9 w7 \, d* l# }& }# K- a! s
1.在相贯线名义上的“四个象限点”处做出符合CAD要 ...

8 R" \, G5 @$ m! _你继续用68的台阶圆在里面切除下看看会不会穿漏!如不穿漏,两处还有多少壁厚!
发表于 2015-6-20 13:44:58 | 显示全部楼层 来自: 中国香港
本帖最后由 大鹿 于 2015-6-20 13:46 编辑
6 t  L0 ]1 @9 w' z8 e4 s9 y
3 j) S, D1 F4 z' U8 }5 A6 R3 R& u这是平板闸阀的壳体,与下图相类似:
5 g9 J+ ]$ }/ ?; N0 Y7 h v.JPG ; e/ {% _/ I6 y9 f9 B( I
楼主图中的79没有Ф开头,79不是直径,所以壳体是扁形的。
3 W8 c) t+ T1 C: p8 R$ P花了数十分钟做了一下,附件是X_T可作参考:( Q2 z0 p2 g9 f' y+ P$ t3 \- \; ]
Flat_Gate_Valve.rar (79.74 KB, 下载次数: 12)
发表回复
您需要登录后才可以回帖 登录 | 注册

本版积分规则


Licensed Copyright © 2016-2020 http://www.3dportal.cn/ All Rights Reserved 京 ICP备13008828号

小黑屋|手机版|Archiver|三维网 ( 京ICP备2023026364号-1 )

快速回复 返回顶部 返回列表