QQ登录

只需一步,快速开始

登录 | 注册 | 找回密码

三维网

 找回密码
 注册

QQ登录

只需一步,快速开始

展开

通知     

查看: 968|回复: 2
收起左侧

[求助] 求助草图块

[复制链接]
发表于 2016-1-22 19:03:09 | 显示全部楼层 |阅读模式 来自: 中国山东莱芜

马上注册,结识高手,享用更多资源,轻松玩转三维网社区。

您需要 登录 才可以下载或查看,没有帐号?注册

x
5 R, D! M1 R' Q: O& [. m4 N9 ~
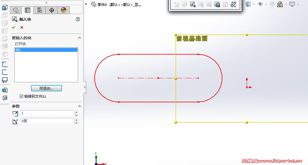
零件A中草图块a,想在零件件B中使用,并且零件A中的块a更新后,零件B中草图块也跟着变化。若实现以上功能,有几种方法,求教
 楼主| 发表于 2016-1-22 21:27:04 | 显示全部楼层 来自: 中国山东莱芜
两个零件有关联,第一个相当于装配体,只用草图块画出零件B或C或更多零件的安装位置即可,想在工程图中完成(不需进行零件B\C 等的装配),因为此图只需简图用草图块就可以胜任,然后利用草图块去分别生成零件B/C等,保持关联,便于修改
, S0 W8 g# Z1 }; L: T
发表于 2016-1-24 14:00:30 | 显示全部楼层 来自: 中国陕西西安
2016-01-24_13-58-38.jpg 利用插入块,并链接到文件可以实现你的想法!
6 h" V+ a( ]& J' I) D

评分

参与人数 1三维币 +3 收起 理由
阿帕奇 + 3

查看全部评分

发表回复
您需要登录后才可以回帖 登录 | 注册

本版积分规则


Licensed Copyright © 2016-2020 http://www.3dportal.cn/ All Rights Reserved 京 ICP备13008828号

小黑屋|手机版|Archiver|三维网 ( 京ICP备2023026364号-1 )

快速回复 返回顶部 返回列表