QQ登录

只需一步,快速开始

登录 | 注册 | 找回密码

三维网

 找回密码
 注册

QQ登录

只需一步,快速开始

展开

通知     

查看: 2069|回复: 2
收起左侧

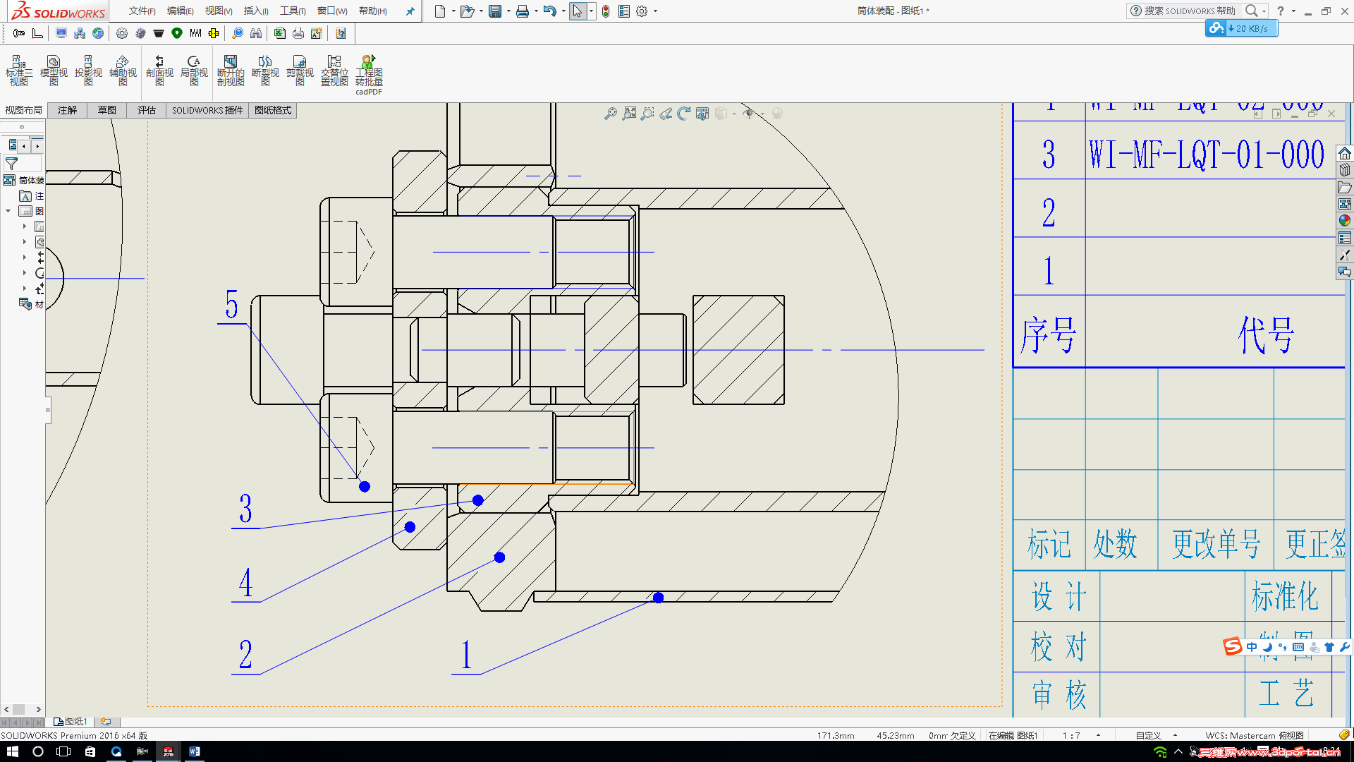
[求助] sw2016装配图不显示标准件螺纹

[复制链接]
发表于 2016-4-4 08:35:50 | 显示全部楼层 |阅读模式 来自: 中国福建福州
大装配
主题分类用于问题归类:

马上注册,结识高手,享用更多资源,轻松玩转三维网社区。

您需要 登录 才可以下载或查看,没有帐号?注册

x
本帖最后由 goto3d 于 2016-4-5 14:27 编辑
7 t* Y$ ^3 y6 B) f$ t' V% q- a1 u- b* J8 w4 J' e/ w3 y
sw2016装配图不显示标准件螺纹,请教各位大侠& W5 N4 W2 G  {% v6 ~
2.png
发表于 2016-4-4 11:06:32 | 显示全部楼层 来自: 中国广东佛山
模型项目---里面可以选择
发表回复
您需要登录后才可以回帖 登录 | 注册

本版积分规则


Licensed Copyright © 2016-2020 http://www.3dportal.cn/ All Rights Reserved 京 ICP备13008828号

小黑屋|手机版|Archiver|三维网 ( 京ICP备2023026364号-1 )

快速回复 返回顶部 返回列表