QQ登录

只需一步,快速开始

登录 | 注册 | 找回密码

三维网

 找回密码
 注册

QQ登录

只需一步,快速开始

展开

通知     

查看: 2819|回复: 5
收起左侧

[求助] Solidworks如何用方程式求解尺寸?

[复制链接]
发表于 2021-4-25 22:25:28 | 显示全部楼层 |阅读模式 来自: 中国江苏无锡
安装
主题分类用于问题归类:

马上注册,结识高手,享用更多资源,轻松玩转三维网社区。

您需要 登录 才可以下载或查看,没有帐号?注册

x
$ O: t+ `8 O; O$ q
今天一同事问我,Iventor有这样一个功能,如图1,A、B两点固定、C、D两点自由,但BC、BD分别竖直、水平。能否在solidworks中随意画个线段标记为X,然后对AD、AC分别用方程式标为100+X、100+2X,AD、AC各自的长度就可以测出来,通过这个方法可以求解尺寸。问solidworks有没有相似的功能。我没找出来,但觉得这个功能蛮好,所以请教一下大家。' a( y! E8 _1 @# f2 r" I

- f& p3 G5 a: `+ Q注:仅这个案例,可以用做图的方法求解出来,但对于逻辑关系复杂的就比较难了,比如AD=100+34X、AC=100+37*X*X.但如果用同事说的方程式的方法就很简单了。% o! c) U4 C0 ]
1111.png
 楼主| 发表于 2021-4-25 22:27:52 | 显示全部楼层 来自: 中国江苏无锡
本帖最后由 arter 于 2021-4-26 21:21 编辑 % [  v( P; u' d2 _# B
$ v) v7 \% }! c8 R$ x6 j
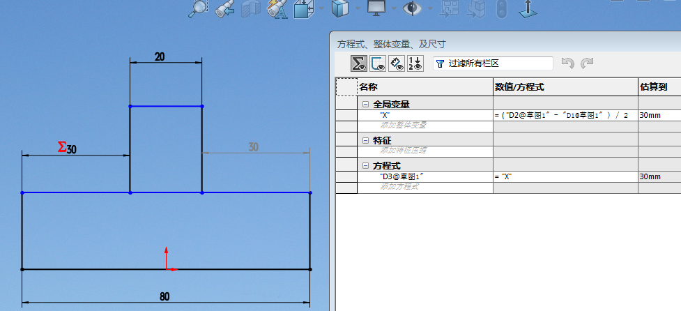
同事还举了个例子,如下图所示,两个尺寸都标为X,但数值却不固定,20、100中任意只改一个尺寸,X数值跟着改。这个功能也蛮好,一并求解。" Q, ?( R: q' M
5 [0 W: r- R# \
注:solidworks中可以采用镜像关系或尺寸相等的约束关系实现这个功能。鄙人是想知道有没有Iventor类似这样的功能及如何实现。不同的方法在不同的情况下有着难以比拟的妙用。谢谢。0 o7 q1 _8 m' s; {/ k  J
222.png
发表于 2021-4-26 11:05:42 | 显示全部楼层 来自: 中国上海
arter 发表于 2021-4-25 22:27
/ A# e! j: B! ]- h& i3 t* h, z7 N同事还举了个例子,如下图所示,两个尺寸都标为X,20、100中改任意一个尺寸,另一个尺寸跟着改。这个功能也 ...

" I, V/ J; A( z2 Y5 d0 @糊涂了
 楼主| 发表于 2021-4-26 22:36:30 | 显示全部楼层 来自: 中国江苏无锡
zhqi0 发表于 2021-4-26 11:052 E- S; P' i: _8 l
糊涂了
+ u! O6 I! T# @' L% Z$ L5 x
抱歉,是我描述有误,已改过来了。
发表于 2021-4-27 08:42:38 | 显示全部楼层 来自: 中国辽宁丹东
[ 本帖最后由 qiminger 于 2021-4-27 11:05 编辑 ]\n\n菜单/工具/方程式
. [: N/ c0 B! q( h6 Y0 P
2021-04-27_084026.jpg
2021-04-27_085117.jpg
发表于 2021-4-27 10:05:14 | 显示全部楼层 来自: 中国浙江宁波
菜单/工具/方程式
; n# h* u& Q& E& I; a# H3 [; O
% d! G; B- H5 {4 J2 r0 N9 J2 w- k0 D* P! V3 c  z% |2 c5 v7 z
测试用,去掉附件(图片?)就可以显示了
0 K) _# ^. c5 e  [! z
发表回复
您需要登录后才可以回帖 登录 | 注册

本版积分规则


Licensed Copyright © 2016-2020 http://www.3dportal.cn/ All Rights Reserved 京 ICP备13008828号

小黑屋|手机版|Archiver|三维网 ( 京ICP备2023026364号-1 )

快速回复 返回顶部 返回列表