QQ登录

只需一步,快速开始

登录 | 注册 | 找回密码

三维网

 找回密码
 注册

QQ登录

只需一步,快速开始

展开

通知     

查看: 2831|回复: 3
收起左侧

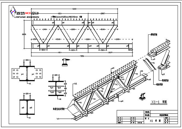
[分享] 三维工程设计图纸(钢结构桁架)

 关闭 [复制链接]
发表于 2008-11-29 11:31:58 | 显示全部楼层 |阅读模式 来自: 中国江苏徐州

马上注册,结识高手,享用更多资源,轻松玩转三维网社区。

您需要 登录 才可以下载或查看,没有帐号?注册

x
霖坊3d工作室
+ A" Z, \+ v- v- ?4 ghttp://www.linfang3d.cn/html/Project.html7 b# Z7 }. X* |# N# D/ j; H& D
三维视频实例教程下载
6 L& m) S5 p5 L0 h9 _( E. G0 p三维设计工程图纸参考; Y. t0 g" A  W+ S+ n
cad三维技术交流: h& T4 M9 s! e4 f% _2 v' f2 t
***请各位多多支持***8 b* @, i: h7 W5 ~* }2 Q( o* |
01.jpg 00.jpg 97.jpg 99.jpg 30.jpg 26.jpg 27.jpg 28.jpg
 楼主| 发表于 2008-11-29 13:59:36 | 显示全部楼层 来自: 中国江苏徐州
有很多工程实例,,已施工....! C4 w% k; R# E6 M7 ~: I; z
http://www.linfang3d.cn/html/pro.html. N. C4 E4 U" U" [1 ~! U' |2 z
02.jpg 84.jpg 26.jpg
发表于 2008-11-29 14:36:09 | 显示全部楼层 来自: 中国四川成都
霖坊3d工作室的,非常不错,其网页还有不少有用三维cad实用视频教程下载。
发表于 2008-11-29 14:44:53 | 显示全部楼层 来自: 中国广东佛山
做的很不错,不知你们工作室有多少设计师?
发表回复
您需要登录后才可以回帖 登录 | 注册

本版积分规则


Licensed Copyright © 2016-2020 http://www.3dportal.cn/ All Rights Reserved 京 ICP备13008828号

小黑屋|手机版|Archiver|三维网 ( 京ICP备2023026364号-1 )

快速回复 返回顶部 返回列表