QQ登录

只需一步,快速开始

登录 | 注册 | 找回密码

三维网

 找回密码
 注册

QQ登录

只需一步,快速开始

展开

通知     

全站
7天前
查看: 6728|回复: 18
收起左侧

[机械] 几台除尘器图纸

[复制链接]
发表于 2009-2-19 18:12:40 | 显示全部楼层 |阅读模式 来自: 中国江苏南通

马上注册,结识高手,享用更多资源,轻松玩转三维网社区。

您需要 登录 才可以下载或查看,没有帐号?注册

x
几台除尘器图纸 llp-7000除尘器总图[1].part1.rar (1.95 MB, 下载次数: 504)

评分

参与人数 1三维币 +5 收起 理由
2005llnn + 5 好资料,感谢您对论坛的支持!

查看全部评分

 楼主| 发表于 2009-2-19 18:15:30 | 显示全部楼层 来自: 中国江苏南通
DK技术参数 llp-7000除尘器总图[1].part2.rar (1.06 MB, 下载次数: 373)
发表于 2009-2-20 13:02:09 | 显示全部楼层 来自: 中国黑龙江大庆
学习学习,谢谢!
发表于 2009-3-22 12:51:47 | 显示全部楼层 来自: 中国北京
很不错的,值得收藏学习
发表于 2009-6-20 18:25:13 | 显示全部楼层 来自: 中国上海
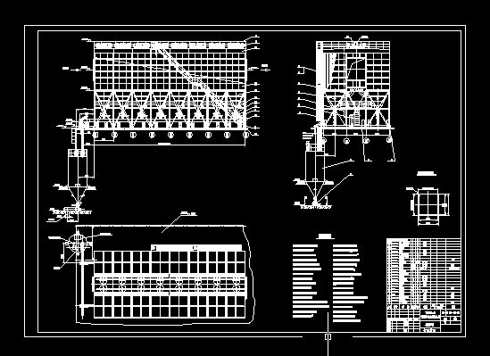
这么个东西,不知对大家有用否,见图
2.jpg
头像被屏蔽
发表于 2009-12-17 16:08:48 | 显示全部楼层 来自: 中国湖北黄冈
提示: 作者被禁止或删除 内容自动屏蔽
发表于 2009-12-18 19:22:08 | 显示全部楼层 来自: 中国山西太原
太好了正需要呢谢谢
发表于 2010-2-21 13:45:08 | 显示全部楼层 来自: 中国云南昆明
有烧塑烧板的吗?
发表于 2010-2-24 18:32:43 | 显示全部楼层 来自: 中国江苏宿迁
和我们厂去年生产的蛮像的
发表于 2010-3-2 08:16:21 | 显示全部楼层 来自: 中国江苏南京
几台除尘器图纸??一共就一张图纸嘛!!
发表于 2010-3-20 10:14:03 | 显示全部楼层 来自: 中国甘肃张掖
不错的资料,谢谢分享
发表于 2014-4-10 21:00:07 | 显示全部楼层 来自: 中国福建福州
谢谢搂住分享
发表于 2014-5-16 13:56:39 | 显示全部楼层 来自: 中国河北沧州
看一看,学习一下
发表于 2017-3-18 08:18:53 | 显示全部楼层 来自: 中国河北石家庄
谢谢楼主的分享!
发表于 2017-3-18 08:20:03 | 显示全部楼层 来自: 中国河北石家庄
急需的资料,参考一下,谢谢楼主!
发表于 2018-6-6 16:02:42 | 显示全部楼层 来自: 中国辽宁沈阳
谢谢分享!
发表于 2018-6-20 09:04:35 | 显示全部楼层 来自: 中国辽宁沈阳
谢谢分享
发表于 2020-1-19 14:01:16 | 显示全部楼层 来自: 中国江苏
配置讲清楚了      
发表于 2020-2-19 10:32:24 | 显示全部楼层 来自: 中国河北石家庄
. u/ T& Q2 b5 n8 F( Z7 t/ \$ X
急需的资料,参考一下,谢谢楼主!
发表回复
您需要登录后才可以回帖 登录 | 注册

本版积分规则


Licensed Copyright © 2016-2020 http://www.3dportal.cn/ All Rights Reserved 京 ICP备13008828号

小黑屋|手机版|Archiver|三维网 ( 京ICP备2023026364号-1 )

快速回复 返回顶部 返回列表