QQ登录

只需一步,快速开始

登录 | 注册 | 找回密码

三维网

 找回密码
 注册

QQ登录

只需一步,快速开始

展开

通知     

查看: 3568|回复: 29
收起左侧

[求助] 此图如何画?

[复制链接]
发表于 2009-3-21 15:13:27 | 显示全部楼层 |阅读模式 来自: 中国江苏扬州

马上注册,结识高手,享用更多资源,轻松玩转三维网社区。

您需要 登录 才可以下载或查看,没有帐号?注册

x
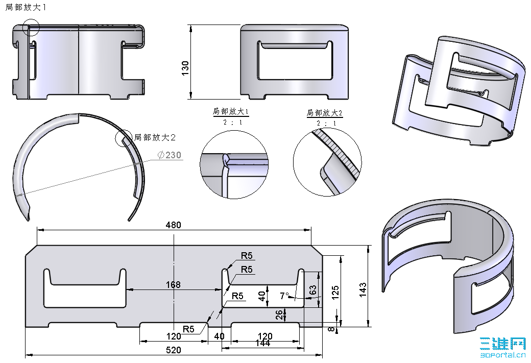
求助此图如何画?在曲面中弯曲,用板金好画吗?请指教

26.2L Model (1).pdf

10.72 KB, 下载次数: 72

 楼主| 发表于 2009-3-21 16:29:54 | 显示全部楼层 来自: 中国江苏扬州
哪位高手帮帮忙
发表于 2009-3-22 16:53:19 | 显示全部楼层 来自: 中国贵州贵阳
展开图尺寸和零件图尺寸貌似部分有冲突
9 i9 M  B4 V: g& G. q% t
8 {9 m% n; ?- D- t[ 本帖最后由 sw2003x 于 2009-3-22 18:43 编辑 ]
Dim_Q.png
Dim_Check.png

评分

参与人数 1三维币 +3 收起 理由
mr.lee + 3 灌水

查看全部评分

发表于 2009-3-22 17:42:08 | 显示全部楼层 来自: 中国安徽蚌埠
截个图比较直观一些.
发表于 2009-3-22 21:58:20 | 显示全部楼层 来自: 中国贵州贵阳
展开图尺寸如果按R10,R8卷边就无法满足10,12的尺寸。又换了思路做了一个
26.2L_Model_Snap.png
26.2L_Model_sw.png
发表于 2009-3-23 08:37:22 | 显示全部楼层 来自: 中国北京

回复 5# sw2003x 的帖子

楼上能指点一下怎么做的吗?我对钣金不够熟,想学习一下 # {5 ^) r9 x# D+ J) G
一直没想明白怎么做
 楼主| 发表于 2009-3-23 09:06:48 | 显示全部楼层 来自: 中国江苏扬州
老兄高手,谢谢帮助,能把源程序发到我的邮箱吗?zcy001zcy001@yahoo.com.cn或加入QQ:739056735要好好向您学习。 :handshake
发表于 2009-3-23 09:54:05 | 显示全部楼层 来自: 中国北京

回复 8# 寂静天花板 的帖子

这个属于圆柱体上加折弯,也就是折弯上再加折弯的,我这只会钣金基础的搞不定 一步一步折弯应该也搞不定。
" ~) w! e" H+ G4 n* T) y6 k5 B没看人家把特征都放到“文件夹1”里面了吗 属于机密操作:lol:
发表于 2009-3-23 09:57:56 | 显示全部楼层 来自: 中国上海
楼主不大方,让大家下载学习学习啊!
发表于 2009-3-23 10:32:48 | 显示全部楼层 来自: 中国上海
就是干吗隐藏步骤让大家学习学习嘛
发表于 2009-3-23 11:11:58 | 显示全部楼层 来自: 中国上海
镜向的部分为什么有条线在那里
发表于 2009-3-25 10:45:30 | 显示全部楼层 来自: 中国上海
我看是用扫描做的,曲面上用钣金我是折弯不了,也想不出好办法
 楼主| 发表于 2009-3-28 13:53:24 | 显示全部楼层 来自: 中国江苏扬州
老兄高手,谢谢帮助,能把源程序发到我的邮箱吗?zcy001zcy001@yahoo.com.cn
发表于 2009-3-28 14:49:02 | 显示全部楼层 来自: 中国湖北武汉
不错啊,三楼很强,值得学习,应该顶一下。
发表于 2009-3-28 17:10:24 | 显示全部楼层 来自: 中国河南安阳
三楼的特征树里没有钣金,应该是实体,用其他的专业钣金软件才能展开
* T, b- F! @# |8 a0 P 其实是我也搞不定这个折弯到底怎么做,瞎说的
 楼主| 发表于 2009-4-3 09:18:51 | 显示全部楼层 来自: 中国江苏扬州
哪位高手再帮帮忙,不要隐藏,谢谢!
发表于 2009-4-3 09:33:48 | 显示全部楼层 来自: 中国安徽淮南
这么难的大家都会,我还是菜啊
 楼主| 发表于 2009-4-22 14:29:54 | 显示全部楼层 来自: 中国江苏扬州
哪位高手再帮帮忙,不要隐藏,谢谢!我正在搞这个设计
发表于 2009-4-22 15:12:37 | 显示全部楼层 来自: 中国江苏常州
做好一个钣金的,大家参考一下!共同进步,呵呵~~~~

Part1.rar

400.75 KB, 下载次数: 14

发表于 2009-4-22 15:14:06 | 显示全部楼层 来自: 中国江苏常州
下面小细节,大家应该自己会做的 我就不接着弄了 去开会喽~~
发表于 2009-4-22 15:58:46 | 显示全部楼层 来自: 中国北京
用曲面扫描可以做出来
发表于 2009-4-22 16:08:54 | 显示全部楼层 来自: 中国广东肇庆
原帖由 78784545 于 2009-4-22 15:12 发表 http://www.3dportal.cn/discuz/images/common/back.gif! M4 D7 ^6 J5 z: w7 p; U
做好一个钣金的,大家参考一下!共同进步,呵呵~~~~

5 H( i! y, I+ l  J# I$ k4 N" o* y. p$ n1 ^9 u" e* E
4 w0 {% r; y$ h& D  E
能不能转一下啊,我的2006打不开文件
发表于 2009-4-22 16:49:15 | 显示全部楼层 来自: 中国江苏常州
呵呵~ 我是08版的 怎么转到是不知道!
发表于 2009-4-22 17:20:11 | 显示全部楼层 来自: 中国江苏常州

LOOK

重新细化 给个完整的 大家看看~ 注:谁有办法把08版的转成06版的

Part1.rar

448.83 KB, 下载次数: 52

发表于 2009-4-23 08:47:36 | 显示全部楼层 来自: 中国江苏常州
http://file:///C:/Documents%20and%20Settings/weng.jie.JINTAN/桌面/新建文件夹/2.png: W8 C( K5 a  d/ [

; h3 L5 G' Z0 z
: k: T& J2 F) d% B& P3 b/ i+ A5 i9 [发个截图大家看一下~~~
发表回复
您需要登录后才可以回帖 登录 | 注册

本版积分规则


Licensed Copyright © 2016-2020 http://www.3dportal.cn/ All Rights Reserved 京 ICP备13008828号

小黑屋|手机版|Archiver|三维网 ( 京ICP备2023026364号-1 )

快速回复 返回顶部 返回列表