QQ登录

只需一步,快速开始

登录 | 注册 | 找回密码

三维网

 找回密码
 注册

QQ登录

只需一步,快速开始

展开

通知     

查看: 1334|回复: 0
收起左侧

[讨论] 振动实验托架

[复制链接]
发表于 2009-3-27 21:42:29 | 显示全部楼层 |阅读模式 来自: 中国河北唐山

马上注册,结识高手,享用更多资源,轻松玩转三维网社区。

您需要 登录 才可以下载或查看,没有帐号?注册

x
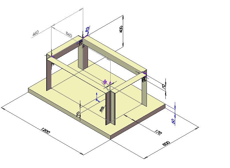
上面加装减震器后加振动平台。平台上固定待测物。下加振动电机。采用YZS电机0.75kw 4极,60X60X18橡胶弹簧。激振力16KN.
! ~, f0 z  A  {& ~7 I' u4 u8 j* R% j
[ 本帖最后由 zhaowenzhu 于 2009-3-29 20:59 编辑 ]
jia.jpg
角链接.jpg
套.jpg
发表回复
您需要登录后才可以回帖 登录 | 注册

本版积分规则


Licensed Copyright © 2016-2020 http://www.3dportal.cn/ All Rights Reserved 京 ICP备13008828号

小黑屋|手机版|Archiver|三维网 ( 京ICP备2023026364号-1 )

快速回复 返回顶部 返回列表