QQ登录

只需一步,快速开始

登录 | 注册 | 找回密码

三维网

 找回密码
 注册

QQ登录

只需一步,快速开始

展开

通知     

查看: 1438|回复: 6
收起左侧

[讨论] 在SW里实现AutoCAD界面

[复制链接]
发表于 2009-5-5 18:13:53 | 显示全部楼层 |阅读模式 来自: 中国山东济南

马上注册,结识高手,享用更多资源,轻松玩转三维网社区。

您需要 登录 才可以下载或查看,没有帐号?注册

x
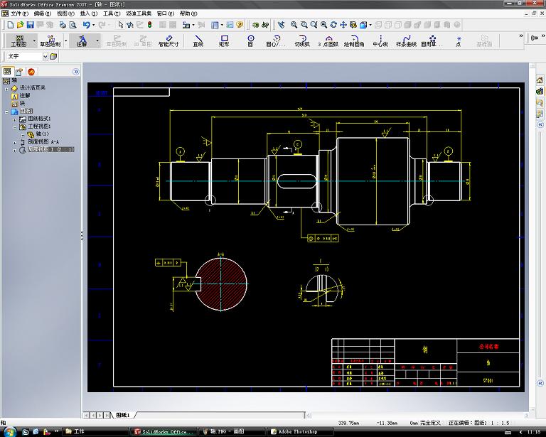
看下面的图片,在SW里实现了出工程图完全模仿AutoCAD的模式,而且可以自由切换SW模式和AutoCAD模式,大家感觉如何?这个功能实用吗?4 c1 w% k2 }3 s% X9 [7 e  L8 M

+ o( \$ P: Z8 F( R. K' E5 Y9 z7 i 轴.PNG
发表于 2009-5-5 18:24:23 | 显示全部楼层 来自: 中国广东佛山
朋友!这个功能好像并不实用啊,有这个必要吗,
 楼主| 发表于 2009-5-6 16:29:18 | 显示全部楼层 来自: 中国山东济南
其实很简单,但是我们希望将设置变得简单一些,以帮助那些从AutoCAD转过来的设计者9 G- D( x1 _0 `7 d: Y
轴.jpg
发表于 2009-5-6 18:06:31 | 显示全部楼层 来自: 中国辽宁沈阳
很喜剧的话题
发表于 2009-5-6 20:07:55 | 显示全部楼层 来自: 中国江苏镇江
绝对的实用,求方法。
发表于 2009-5-6 20:30:39 | 显示全部楼层 来自: 中国浙江台州
换个颜色有何希奇,有何用!完全没有必要!老是怀念CAD的人可以这样
发表于 2009-5-6 20:42:02 | 显示全部楼层 来自: 中国山东烟台
不会是高射炮打蚊子吧?
发表回复
您需要登录后才可以回帖 登录 | 注册

本版积分规则


Licensed Copyright © 2016-2020 http://www.3dportal.cn/ All Rights Reserved 京 ICP备13008828号

小黑屋|手机版|Archiver|三维网 ( 京ICP备2023026364号-1 )

快速回复 返回顶部 返回列表