QQ登录

只需一步,快速开始

登录 | 注册 | 找回密码

三维网

 找回密码
 注册

QQ登录

只需一步,快速开始

展开

通知     

查看: 5755|回复: 4
收起左侧

[求助] 断开的剖视图的问题

[复制链接]
发表于 2009-5-25 12:31:33 | 显示全部楼层 |阅读模式 来自: 中国浙江杭州

马上注册,结识高手,享用更多资源,轻松玩转三维网社区。

您需要 登录 才可以下载或查看,没有帐号?注册

x
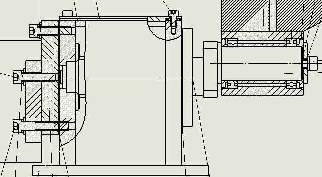
未命名.jpg : e: z1 {3 C, d
1.断开的剖视图功能中有不包括扣件选项,可选择后轴承也不剖了,怎么办?(于是我取消了不包括扣件选项手动选择,可又出现了2的问题)6 l: d+ F/ n. Y' o; _. U
2.一个视图中有几个断开的剖视图,只要其中一个选了不包括扣件选项,其他的也会不包括扣件,诡异啊
9 |& Q: ]3 W6 T3.轴承剖面该怎么画,如果用草绘,当模型更新后,剖面线可能会错位
8 _8 f( |8 J! ~, t* G& r% G/ |6 J5 G: W, n5 s6 b# [5 T
[ 本帖最后由 wztted 于 2009-5-25 12:35 编辑 ]
发表于 2009-5-25 14:20:24 | 显示全部楼层 来自: 中国北京
可在剖面线处右击选择属性,在工程视图属性中选择剖面范围,把不想剖的工件(轴类零件、扣件等)选中即可
 楼主| 发表于 2009-5-25 18:34:18 | 显示全部楼层 来自: 中国浙江杭州

回复 2# 寂静天花板 的帖子

个人感觉不是好办法,我希望有正规的解决方案
发表于 2009-5-26 14:03:01 | 显示全部楼层 来自: 中国浙江金华
我认为三楼的办法应该可行吧
* O7 q; ~$ v' i0 ?* F: i2 h8 ?4 s/ c- u- [  d
如果手绘可以用实体引用的方法,应该没问题,没试.
 楼主| 发表于 2009-5-31 19:44:03 | 显示全部楼层 来自: 中国浙江杭州

回复 5# sunrays110 的帖子

我不认为3楼的是好办法,扣件自己选在少的时候可用,扣件多的时候会很麻烦的
发表回复
您需要登录后才可以回帖 登录 | 注册

本版积分规则


Licensed Copyright © 2016-2020 http://www.3dportal.cn/ All Rights Reserved 京 ICP备13008828号

小黑屋|手机版|Archiver|三维网 ( 京ICP备2023026364号-1 )

快速回复 返回顶部 返回列表