QQ登录

只需一步,快速开始

登录 | 注册 | 找回密码

三维网

 找回密码
 注册

QQ登录

只需一步,快速开始

展开

通知     

查看: 2351|回复: 4
收起左侧

[求助] AUTOcad里面怎么样尺寸驱动啊?

[复制链接]
发表于 2009-8-22 08:55:17 | 显示全部楼层 |阅读模式 来自: 中国广东深圳

马上注册,结识高手,享用更多资源,轻松玩转三维网社区。

您需要 登录 才可以下载或查看,没有帐号?注册

x
AUTOcad里面怎么样尺寸驱动啊?
发表于 2009-8-22 15:20:25 | 显示全部楼层 来自: 中国北京
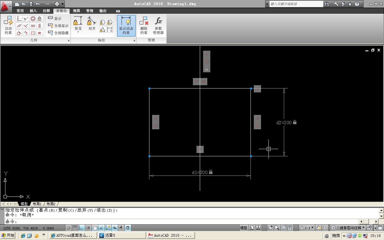
二楼说的很对,目前只有autocad 2010版本才可以进行尺寸驱动和约束,当然你如果使用其它版本的话也可以安装比如天河一类的插件进行尺寸约束,不过那只能用在系列化零件的功能上。平常的图线则不能进行约束。目前只有autocad2010有在任意图形上进行约束和尺寸驱动的功能,但其功能目前较为简单,而且某些约束不能够集中添加。而且还不能默认启动,建议autocad后续版本在选项中添加是否启用约束和驱动的功能。后续版本应补充其功能和添加其它应用。
cad2010约束和驱动.jpg
发表于 2009-8-24 09:57:13 | 显示全部楼层 来自: 中国重庆
如果有尺寸驱动功能修改图纸就方便多了
发表于 2009-8-24 11:37:11 | 显示全部楼层 来自: 中国广东汕头
其实2010的驱动还不是那么的方便。期待2011的更完善
发表于 2009-9-12 13:59:54 | 显示全部楼层 来自: 中国重庆
PCCAD2008好象有这个功能,你可以去下载试试
发表回复
您需要登录后才可以回帖 登录 | 注册

本版积分规则


Licensed Copyright © 2016-2020 http://www.3dportal.cn/ All Rights Reserved 京 ICP备13008828号

小黑屋|手机版|Archiver|三维网 ( 京ICP备2023026364号-1 )

快速回复 返回顶部 返回列表