QQ登录

只需一步,快速开始

登录 | 注册 | 找回密码

三维网

 找回密码
 注册

QQ登录

只需一步,快速开始

展开

通知     

查看: 1692|回复: 10
收起左侧

[讨论] 请问各位是用哪一种标注法呢?

[复制链接]
发表于 2009-9-18 11:40:08 | 显示全部楼层 |阅读模式 来自: 中国台湾

马上注册,结识高手,享用更多资源,轻松玩转三维网社区。

您需要 登录 才可以下载或查看,没有帐号?注册

x
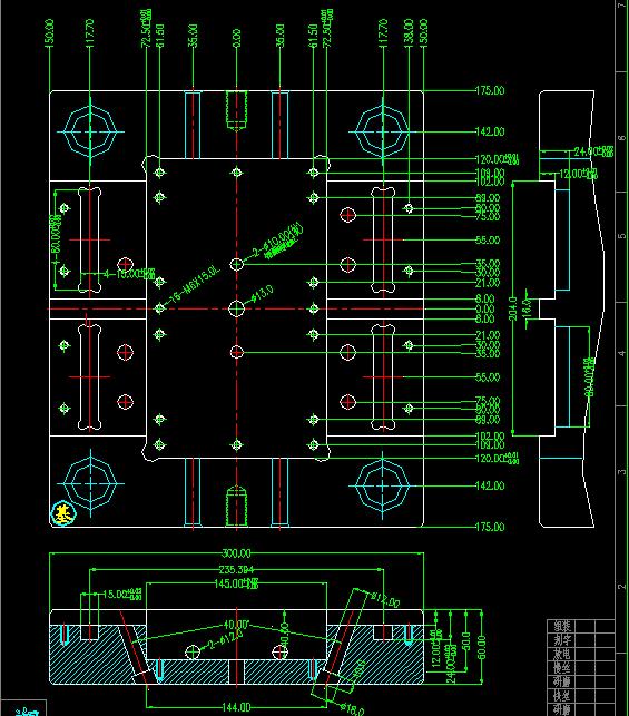
下图中有两种标注方式,左边是一般标注法,右边是座标式标注法,请问各位是使用哪一种标注方式?2 L$ I: T4 y1 a
http://2
0009.jpg
头像被屏蔽
发表于 2009-9-18 11:51:40 | 显示全部楼层 来自: 中国河北衡水
提示: 作者被禁止或删除 内容自动屏蔽
 楼主| 发表于 2009-9-18 11:57:40 | 显示全部楼层 来自: 中国台湾
左边的标注好一些。
. M: v: B! @: E

9 y9 F8 S/ U3 f& R 谢谢hebei大大~% o* K# o5 Q8 t/ q* \. x6 |* n# X1 J
怎麽说左边的标注好一些呢?
发表于 2009-9-18 11:58:41 | 显示全部楼层 来自: 中国北京
我都是用左边的
发表于 2009-9-18 13:26:34 | 显示全部楼层 来自: 中国广东佛山
坐标标注不直观,斜置的矩形要通过计算才知道是否真为矩形。切割、蚀刻行业程序需要可能用到坐标标注,但大多也还是在传统的表意画法上改制的。
发表于 2009-9-18 13:50:41 | 显示全部楼层 来自: 中国江苏无锡
一般情况下都是用左边的标注方法,优点是比较直观。但在有些地方则用右边的标注方法,比如有些高精度要求的零件,制造和检验都是通过数控设备进行的,就会用右边的方法进行标注。

评分

参与人数 1三维币 +3 收起 理由
2005llnn + 3 技术讨论

查看全部评分

 楼主| 发表于 2009-9-18 13:58:56 | 显示全部楼层 来自: 中国台湾
原帖由 寂静天花板 于 2009-9-18 13:43 发表 http://www.3dportal.cn/discuz/images/common/back.gif
8 c. }: ?/ Z4 m2 ?) F* ?: q右边的图让审图的如何审图

5 g" ?$ e) n+ ^, X# m9 E# j
6 x' N! A/ j% J7 V' ?3 ~1 c怎麽说呢?很想听您宝贵的意见,谢谢~
发表于 2009-9-18 17:11:40 | 显示全部楼层 来自: 中国山东
就楼主图所示,应该是左图的一样标注法比较实用。
: \) D- a) F5 E( r$ w! p5 @$ I! T( O& J( R. y1 E" o' H6 V/ {
我认为坐标法标注主要用于:3 F! P. Z. }+ N& W
* A1 Z$ f' Z  C2 Y) s- b: ~+ E& {
1、标注比较多且密集的总装图或零件图;. G& s; {2 G4 R3 P- M3 a: a8 n

5 `; n7 `# c( B0 c& ]2、不规则流线形表面的标注,如车壳标注等。! p. W' e( [  F* l9 Q! w+ I

! `/ F6 A5 a0 {2 F, L8 ~; [) u% V由于标注尺寸太多,如果用一般标注法,图纸标注尺寸混乱,如果用坐标标注,则比较清晰条理。' S7 Y" W; i3 s/ P5 ?/ [
1 D2 c) m: E9 K' Q
坐标法标注一般在主视图,在模具设计中应用也比较多。
0 t$ r; c6 }% |* O8 B
5 I! U( K  L& [$ w9 Q+ j[ 本帖最后由 yulongfan 于 2009-9-18 17:17 编辑 ]
3.jpg

评分

参与人数 1三维币 +5 收起 理由
2005llnn + 5 应助

查看全部评分

发表于 2009-9-18 17:14:33 | 显示全部楼层 来自: 中国湖北武汉
左边的标注好一些。如果是数控设备就用右边的。
 楼主| 发表于 2009-9-21 17:28:22 | 显示全部楼层 来自: 中国台湾
感谢大家的意见………是否还有其他人的见解呢? :)
发表于 2009-9-22 09:39:05 | 显示全部楼层 来自: 中国湖北孝感
很少用座标标注
发表回复
您需要登录后才可以回帖 登录 | 注册

本版积分规则


Licensed Copyright © 2016-2020 http://www.3dportal.cn/ All Rights Reserved 京 ICP备13008828号

小黑屋|手机版|Archiver|三维网 ( 京ICP备2023026364号-1 )

快速回复 返回顶部 返回列表